新中式风格的特点是将现代元素与传统元素相互结合的形式而产生的,同时以现代人的观点来体现出与传统中国风格不一样的设计。将传统的中国元素融入现代化风格中既能增强现代感又不失整体中式感,只有对传统文化有深入的认知,才能将现代元素和传统元素结合在一起,以现代人的审美需求来打造富有传统韵味的空间,让传统得以传承下去,同时新中式风格大多数采用对称性的设计,体现出一定的协调性。新中式风格能营造出强烈的中国风,具有强烈的中国气息,同时也会给人厚重的感觉。
已有0人预约TA
电话:15643617732
专业设计师1对1免费家装指导
申请即送家装抵券
已有28位业主申请了此服务
在规划上要根据空间之间彼此的功用联系而彼此浸透,让空间的利用率更高。一种时尚潮流、一种文化倾向、一种艺术家理想主义的探索,更是一种美学定义或是一种哲学教育。总是和“简约”或“简约主义”放在一起应用在时尚及当代艺术的理想主义运动中,成为一种思想方法。
已有271人浏览
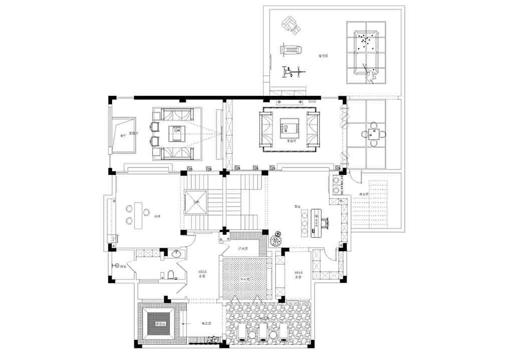
玄关休闲处以表面肌理强烈的石皮,构成一处宁静的空间端景,客厅沙发与电视背景前后以铺一灰色阶的色调搭配,考虑灰阶对象的质感,对比关系中互相衬托互相协调,色彩运用低饱和度具分量感。以及客厅特别设计的橘色沙发等颜色跳跃细致的家具恰到好处,让这个空间变得温馨。厨房白色的橱柜,以及雅士白的柱子,给人一种轻盈感,营造出清澈舒适而雅致的氛围。白灰组合成的空间关系,使空间富有层次感和立体感,空间有了明暗的等级分布。长春装修哪家好,别墅装修,就选东易富盛德15643617732
已有1048人浏览
每座城市都有自己的居住范本。从某种意义来说,也诠释着一个城市该有的设计灵魂及时代精神。瑞士建筑大师卒姆托这样形容美:“美的内核,即是浓缩的本质!”纯粹的艺术光感隐隐约约中传达出美好的情境,静然优雅中富有变化,似有若无的韵律给人以无限遐想。主卧套房的设计运用虚实曲折的设计手法,增加空间的灵动性。简洁的空间设计,营造安静、祥和、舒适的生活方式,让人静享美的净化。
已有461人浏览
与优雅庄重的中式风格不同,现代港式的设计更加现代,简单的线条勾勒出家居的轮廓,一些小点缀来柔和这些现代感。黑、灰、白等内敛色调作为现代港式家居的经典用色
已有254人浏览
展盛设计部主任设计师
睿筑事业部设计师
睿筑设计部设计师
地址:生态东街与天普路交汇东方科技创新中心一号楼电话:0431-81707597邮箱:3445391338@qq.com